Weft House

WEFT HOUSE

Jakarta, indonesia

 

Date:
2011-2012

Type:
COMMISSIONED design proposal
Single family house

Status:
design development proposal

 

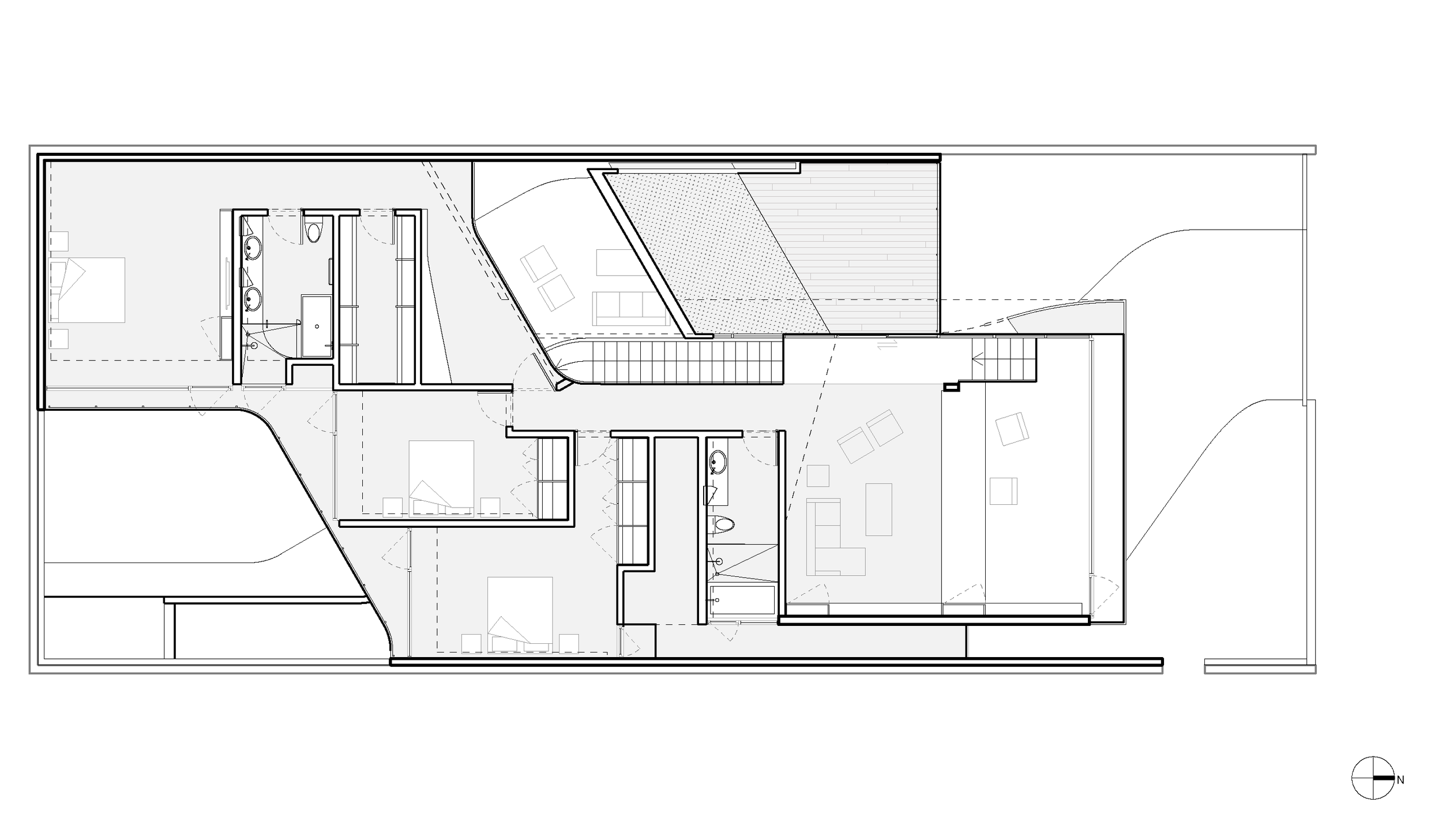
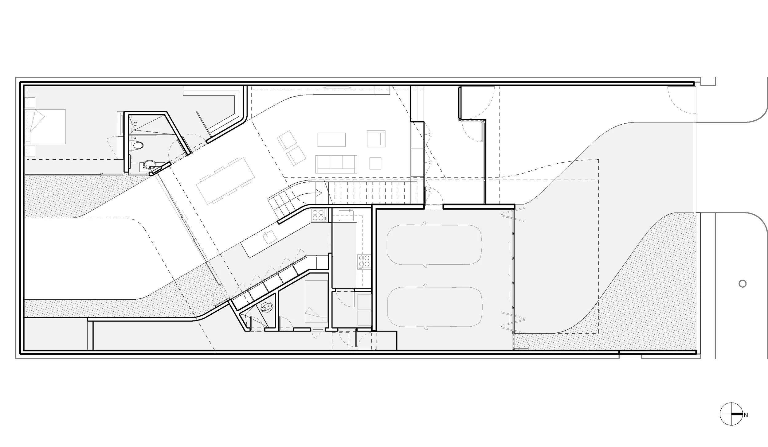
Weft House negotiates the conflict of maximizing volume and the need to access daylight by weaving solid service and private spaces around a string of open public spaces.