KOPO House

KOPO HOUSE

bandung, indonesia

 

Date:
2011-2012

Type:
Residential project

Status:
Completed

 

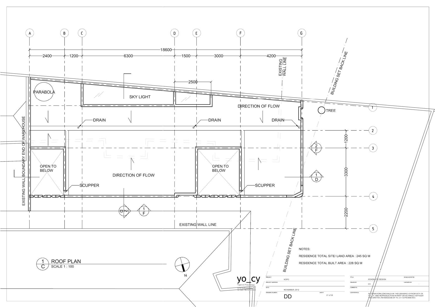
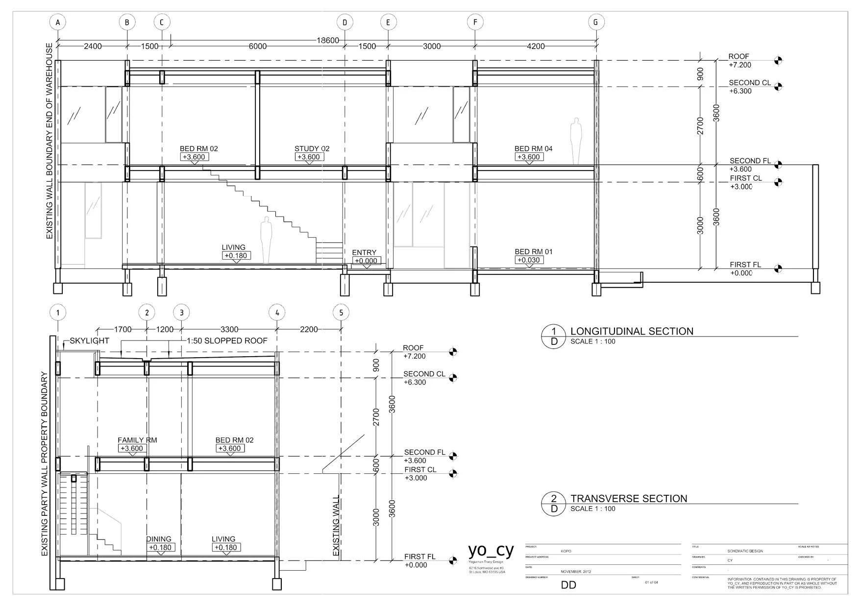
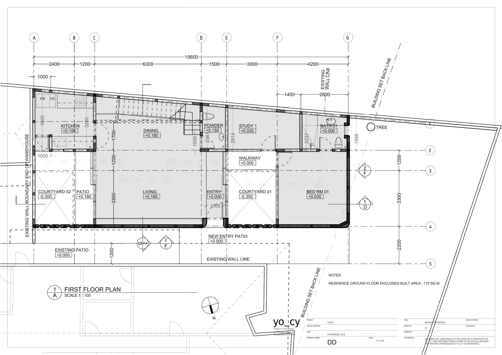
Inspired by Indonesian cast rice dumplings known as Ketupat, the Kopo house mediates a difficult site and creates locally resonant space.